










Sold
Noosa Dream
Noosaville
Noosaville, QLD, 4566
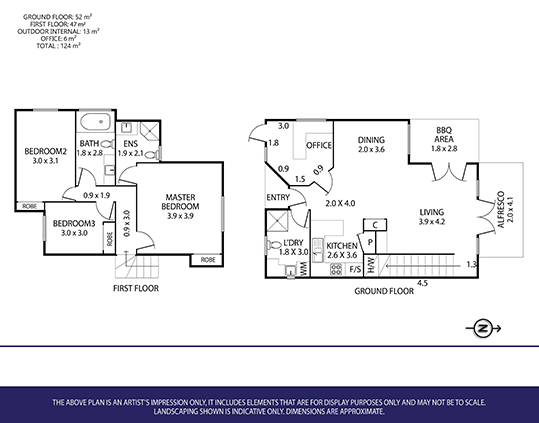
Manager's Unit:
3 Bedrooms
3 Bathrooms
2 Parking
Excellent repeat business. Fantastic position close to the Noosa River attractions plus all the restaurants & cafes. This opportunity is one to take advantage of whether you are a newcomer to the management rights industry or an experienced operator looking for an established and easy to run Management Rights business...well worth a look!
Key Highlights:
- Prestigious well-presented property with resort-style amenities
- Stable letting pool with many loyal returners
- Solid body corporate salary
- Simple and straight forward business model with excellent systems in place.
- Agreements just topped up to 25 years
Nett Income: $274,184
Manager's Unit Value: $765,000
Remuneration: $70,799
Amenities
-
Spa
-
Swimming Pool
-
Cable TV
-
BBQ Facilities
-
Undercover Parking
-
Sauna